Bellinzonese

Si progetta il nuovo ospedale di Bellinzona da 380 milioni

Saleggina: l’Eoc indica una prima fase realizzativa entro il 2031, seguita da sviluppi nel 2046. Cinque piani e per cominciare 240 letti

Il comparto Saleggina di Bellinzona
(Ti-Press)
3 febbraio 2023
|

E nuovo ospedale di Bellinzona sia. E meglio un green hospital da 380 milioni di franchi, allacciato al teleriscaldamento, dotato di una marcata impronta ambientale, quanto a costruzione, e paesaggistica con tanto di parco che favorisca il recupero e la riabilitazione dei pazienti. A otto anni dal primo studio di fattibilità l’Ente ospedaliero cantonale (Eoc) ha pubblicato oggi il bando di progettazione per il nuovo nosocomio previsto alla Saleggina – al posto dello stand di tiro che verrà smantellato e sostituito da uno nuovo e centrale per l’intero Ticino in zona Monte Ceneri – destinato fra alcuni anni a subentrare al buon vecchio San Giovanni. Il quale, presente sulla collina di Ravecchia dal 1940, ha una capacità di ampliamento giunta ormai a tetto non avendo più indici a disposizione. L’Eoc parla di "visione a lungo termine" con una prima fase nel 2031 che vedrà la realizzazione di una struttura in sostituzione dell’attuale. In soldoni: 240 letti per pazienti stazionari (come oggi), 100 ambulatoriali e otto sale operatorie. Destinati a diventare rispettivamente 480, 150 e 20 nella fase di sviluppo con orizzonte 2046.

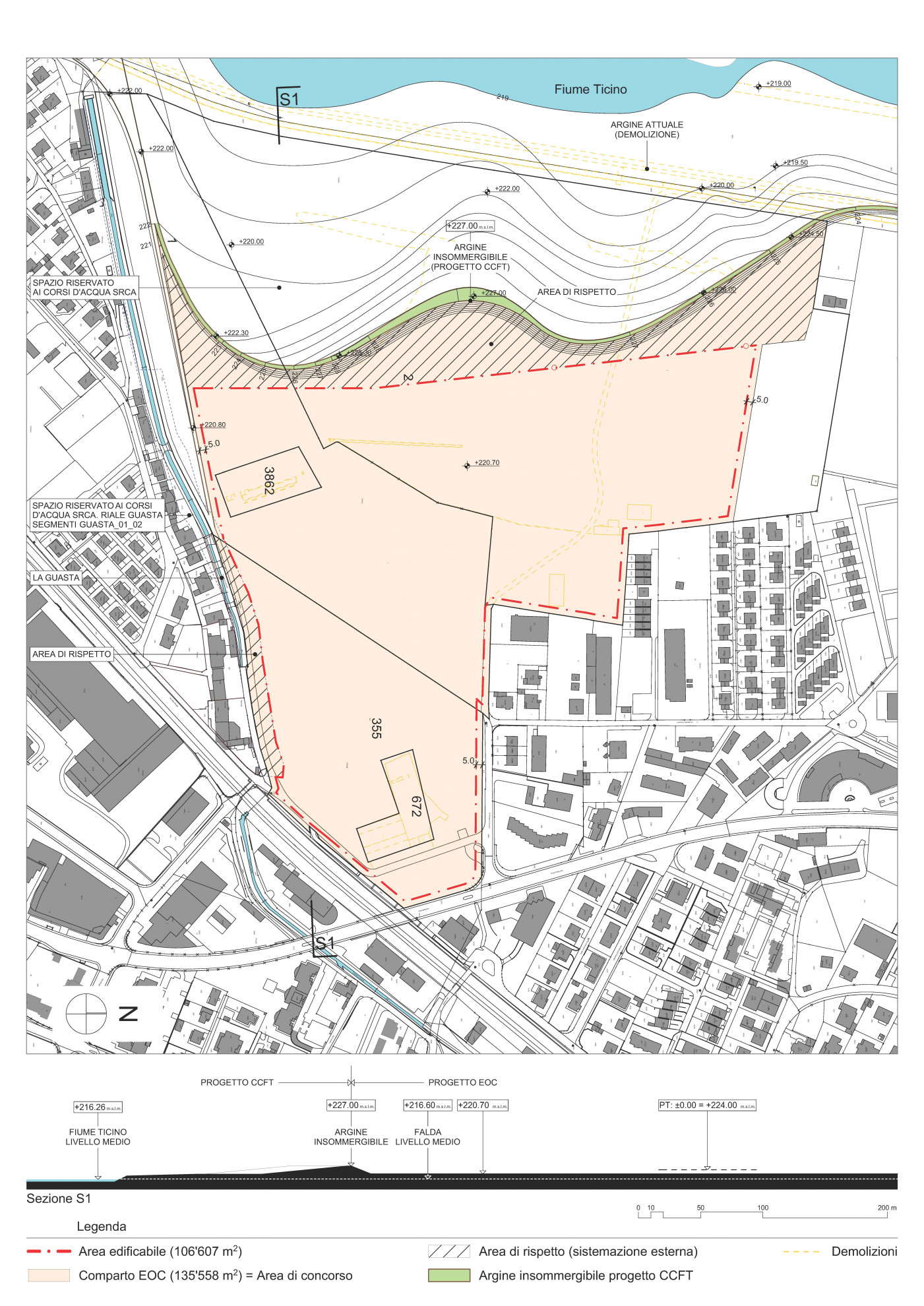
Il direttore dell’Eoc, Glauco Martinetti, interpellato dalla ‘Regione’ spiega che su una superficie complessiva di 214’246 metri quadrati (tanti ne misura la Saleggina) quelli riservati al nuovo ospedale sono 135’558, di cui edificabili 106’607 e i restanti circa 29’000 da usare come fascia cuscinetto fra gli edifici e il previsto parco fluviale che su iniziativa della Confederazione abbellirà la sponda del fiume Ticino. Il rischio di esondazione sarà gestito da una nuova diga insommergibile alberata. «L’altezza massima prevista è di 22 metri e mezzo per complessivi cinque piani», specifica Martinetti aggiungendo che «tutti servizi presenti oggi al San Giovanni troveranno spazio nella nuova infrastruttura, compreso lo Iosi». Il trasloco «dovrà avvenire in tempi relativamente compatti, per assicurare una gestione razionale delle risorse non diffusa troppo a lungo in due siti diversi». Quanto al fatto d’indicare subito la volontà di procedere con due tappe, «questo è molto importante per i progettisti, chiamati a pensare al miglior inserimento possibile nel terreno sia con l’utilizzo 2030/35 sia nel post 2050, i cui contenuti non sono al momento ancora noti». Una volta scelto il progetto vincente – che indicherà volumi, forme e inserimento – sarà avviato l’iter per la variante di Piano regolatore, questa volta di competenza della Città.

Dopo la recente presentazione pubblica dell’ingente piano di investimenti destinato al polo luganese – 200 milioni di franchi in dieci anni per rinnovare e ammodernare gli ospedali Civico, Italiano e il Cardiocentro – ora è dunque la volta di Bellinzona. L’Eoc in un comunicato parla di "asticella molto alta" e di assunzione di "impegni forti, ambiziosi e ben chiari nei tempi attuativi". La premessa, rispetto al perché di questo progetto e di questo impegno, "è la constatazione che nei prossimi 10-12 anni sarà necessario garantire l’apertura di un nuovo nosocomio in sostituzione del San Giovanni, che in quell’arco temporale arriverà alla fine del suo ciclo di vita nonostante gli sforzi di adeguamento in corso d’opera (nuovo blocco operatorio), di sempre più difficile attuazione".

Il comparto Saleggina – situato sul confine fra Bellinzona e il quartiere di Giubiasco e che il Cantone ha acquistato per tale scopo dalla Confederazione pagandolo 13,6 milioni di franchi – è stato scelto "per la sua accessibilità e le dimensioni in grado di assicurare ulteriori futuri sviluppi". Acquisto e destinazione a suo tempo osteggiati dall’Unione contadini e dal contadino che su una porzione di 204’000 metri quadrati pascola tutt’oggi alla Saleggina le proprie mucche, ma che il Tribunale federale ha infine avallato nell’autunno 2021 respingendo entrambi i ricorsi.

Garantirne lo sviluppo a tappe

La nuova struttura "potrà dialogare in maniera sostenibile con il territorio, a supporto di uno sviluppo attento alle esigenze di collaboratori e cittadini, favorendo attività e spazi d’incontro dedicati". L’obiettivo dichiarato nel bando – tema "forte sul quale i concorrenti sono chiamati a riflettere e confrontarsi" – è la realizzazione di una struttura ospedaliera di nuova generazione "in grado di assicurare quella flessibilità necessaria per i continui sviluppi della medicina e le già prevedibili trasformazioni legate allo sviluppo tecnologico, epidemiologico, demografico". Si vuole un ospedale in grado di venire in futuro modificato, aggiornato e ampliato in base alle nuove esigenze, senza mai subire interruzioni o disagi per pazienti e curanti. Al centro, l’essere umano in un ambiente "sostenibile dal punto di vista ambientale, costruttivo, energetico e gestionale". Il tutto completato da un rifugio pubblico per il personale con tre strutture indipendenti affiancate di 200 posti ciascuna, da usare in caso di pandemie o eventi particolari. E di un rifugio per una compagnia sanitaria dell’esercito.

Meno altezza e fuori dal centro: ecco perché

A chi suggeriva d’inserire il nuovo ospedale in centro città, nel nuovo Quartiere Officine, predisponendo una struttura verticale come il Civico di Lugano e non orizzontale come quella prevista alla Saleggina, così da preservare questa area verde, il direttore Eoc Martinetti fornisce alcune risposte: «Dapprima, è vero che la verticalità favorisce un minore utilizzo di terreno e un più rapido spostamento interno di pazienti, personale e visitatori. Ne è un esempio il Civico, il cui risanamento risulta però oggi assai più complesso rispetto a strutture diffuse, meglio gestibili nel lungo periodo sotto più punti di vista». Inoltre necessitando il nuovo ospedale bellinzonese di oltre 100mila metri quadrati, «avrebbe occupato per intero il nuovo Quartiere Officine dove sono invece previsti molti contenuti, diversi fra loro, considerando formazione medio-superiore, ricerca di punta tecnica e biomedica, cultura, spazi amministrativi, commerciali e residenziali, ecc.». Peraltro solo per metà di competenza cantonale e comunale, restando l’altra metà di proprietà Ffs. Non da ultimo, aggiunge Martinetti, «un ospedale è una grande azienda che genera molto traffico: urgenze, fornitori, personale, visitatori, anche voli della Rega. Tutto questo è meglio gestibile ai margini della città che non in centro». Quanto all’eventualità d’inglobare anche la Croce Verde, che ha sete di spazio essendo l’attuale sede un po’ stretta, «probabilmente i suoi tempi non coincidono con i nostri, che sono più lunghi», indica Martinetti.

La prima fase del concorso si concluderà il prossimo agosto, con la selezione di un gruppo ristretto di elaborati (al massimo otto) da ammettere a una seconda fase di approfondimento che porterà all’indicazione del vincitore a febbraio 2024. A seguire, l’iter pianificatorio e autorizzativo previsto dalla legge (appalti ecc.) e quindi l’avvio del cantiere.

Ti-PressIl direttore dell’Eoc, Glauco Martinetti

Quale futuro per il San Giovanni? ‘Valuteremo a tempo debito’

Quale futuro attende il vasto complesso collinare di Ravecchia, i cui volumi costruiti sono molto importanti? Il vicesindaco Simone Gianini in un’intervista rilasciata al nostro giornale nell’autunno 2021 auspicava una riflessione orientata a contenuti di ricerca nel campo biomedico, rafforzando così il polo bellinzonese che vede nell’Irb e nello Ior le punte di diamante a livello nazionale. Nella stessa intervista il capodicastero Territorio e mobilità ricordava però anche che il Programma d’azione comunale indica contenuti rivolti alla terza e quarta età. Confidava quindi che una riflessione in casa Eoc, proprietario del San Giovanni, «possa partire parallelamente alla pianificazione del nuovo nosocomio. È necessario che le due procedure avanzino in modo parallelo, affinché s’individui per tempo, insieme ai vari attori coinvolti, una concreta strategia di riorientamento». Che ne pensa Glauco Martinetti? «Il futuro del San Giovanni è sicuramente un tema sul quale dovremo chinarci. Lo faremo, insieme a Città e Cantone, non appena l’iter progettuale del nuovo ospedale si sarà consolidato. Di sicuro si tratta di una struttura importante nei volumi, fra l’altro allacciata al teleriscaldamento».

Risanare discarica e pista Nato

Sul fondo sono previsti due tipi diversi di risanamento ambientale per eliminare la discarica attiva durante il periodo 1950-70 e composta da rifiuti edili, solidi urbani e materiale di scavo. La deponia occupa una superficie di 18’000 metri quadrati e un volume di 60’000 metri cubi. Costo previsto 11 milioni di franchi, di cui una parte finanziata nell’ambito del progetto di sistemazione del fiume Ticino e creazione del parco fluviale sempre alla Saleggina. Quanto invece al risanamento della pista Nato di 10’000 metri quadrati, usata dall’Esercito, la perizia ambientale ha stabilito un costo di 1,18 milioni.

Leggi anche: